Novostavba rodinný dom Preseľany

cena: 228 000,- €
ID: LG-11 Predaj

Kraj:
Nitriansky kraj
Okres:
Topoľčany
Obec:
Preseľany
Ulica:
Hlavná
Kategória:
Domy a vily
Druh:
Rodinný dom

Podlahová plocha:
150 m2
Plocha pozemku:
957 m2
Stav objektu:
pôvodný stav
Na poschodí:
0
Balkón:
nie
Loggia:
nie
Terasa:
áno
ID inzerátu:
LG-11

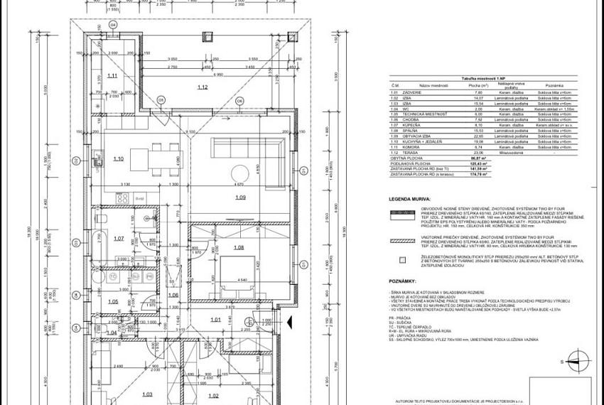
Ponúkame na predaj novostavbu rodinného domu v obci Preseľany , ktorá začne v roku 2025 . Jedná sa o novostavbu nízkoenergetického rodinného domu / drevodom / na pozemku o rozlohe 957 m2 . Dom bude mať 4 izby plus kuchyňa ,kúpeľňa s wc a samostatné wc . Bude v stave dokončenom vrátane podláh interiérových dverí , sanity , obkladov , podláh no bez kuchynskej linky . Kúrenie v dome bude teplovodné podlahové zabezpečené tepelným čerpadlom . Okná plastové , odpad vedený do žumpy. Voda v dome je z verejného vodovodu .

Maklér:

makler
Bc. Lucia Guliková
0907 645 546 lucia@mgreal.sk
Vaše údaje zadané do kontaktného formulára budú odoslané konkrétnemu predajcovi.

Podobné nehnuteľnosti

Rodinný dom s veľkým pozemkom v obci Nové Sady

Rodinný dom s veľkým pozemkom v obci Nové Sady
ID: PK-3 Predaj
Ponúkame na predaj starší 3-izbový rodinný dom s charakterom vidieckeho bývania, situovaný na priestrannom pozemku o výmere až 1 628 m² v obci Nové Sady. Dom z konca 60. rokov sa nachádza v pokojnej časti obce a ponúka široké možnosti rekonštrukcie podľa vlastných predstáv. Základné informácie: * úžitková plocha domu: 99 m² * pozemok: 1 628 m² * konštrukcia: pálená tehla + škvárobetón * hrúbka múrov viac ako 55 cm * valbová strecha * pôvodný, zachovalý stav Dispozícia domu: * vstupná chodba * kuchyňa spojená s jedálňou a obývacou časťou * 2 samostatné izby * špajza * kúpeľňa * suché WC * letná kuchyňa * podpivničená komora Na pozemku sa nachádzajú aj dve hospodárske drevené budovy, každá o rozmere 5 × 7 m, vhodné ako dielňa, sklad alebo priestor pre chov či hobby využitie. Inžinierske siete a vybavenie: * elektrina * plyn * obecný vodovod * vlastná studňa na dvore * kúrenie plynovými kachľami (Gamatky) Odpadová voda je momentálne riešená trativodom, dom nemá vybudovanú žumpu. Pozemok s potenciálom Pozemok je prevažne rovinatý, v strednej časti mierne svahovitý, čo vytvára zaujímavé možnosti pre záhradu, oddychovú zónu či ovocný sad. Veľkorysá výmera poskytuje dostatok priestoru na realizáciu vašich predstáv o bývaní na vidieku. Výborná lokalita Obec Nové Sady ponúka kompletnú občiansku vybavenosť: * škola a škôlka * zdravotné stredisko a lekáreň * pošta * potraviny a železiarstvo * autobusová zastávka * výborná dostupnosť do Nitra Dom je ideálnou voľbou pre záujemcov, ktorí hľadajú pokojné bývanie s veľkým pozemkom, chalupu s atmosférou alebo nehnuteľnosť vhodnú na rekonštrukciu podľa vlastných predstáv. V cene sú zahrnuté kompletné právne služby, správne poplatky na katastri aj overenie podpisov u notára. V prípade záujmu sprostredkujeme aj rýchle a nezávislé finančné poradenstvo pre získanie najvýhodnejšej hypotéky podľa podmienok kupujúceho. 110 000,- €

4 izbový rodinný dom bungalov novostavba Lužianky

4 izbový rodinný dom bungalov novostavba Lužianky
ID: IC-11 Predaj
EXKLUZÍVNE | Moderný 4-izbový rodinný dom v Lužiankach pri Nitre | Novostavba | Tepelné čerpadlo | 4 parkovacie miesta Ponúkame Vám na predaj štýlovú novostavbu 4-izbového rodinného domu, ktorá je súčasťou elegantného dvojdomu v obľúbenej a pokojnej lokalite obce Lužianky, len pár minút od Nitry. Táto nehnuteľnosť predstavuje ideálne spojenie moderného bývania, kvalitných materiálov a výbornej dostupnosti do mesta. Dom je vhodný na okamžité bývanie bez ďalších investícií a zároveň predstavuje výbornú investičnú príležitosť s potenciálom prenájmu. ✨ HLAVNÉ BENEFITY NEHNUTEĽNOSTI: ✔️ moderná novostavba v tichej lokalite ✔️ podlahové kúrenie s tepelným čerpadlom ✔️ nízke mesačné náklady ✔️ kvalitné stavebné materiály a výborná akustická izolácia ✔️ 4 vlastné parkovacie miesta ✔️ slnečný pozemok so záhradou ✔️ záhradný domček / sklad ✔️ možnosť rozšírenia pozemku ✔️ výborná dostupnosť do Nitry a na R1 - LOKALITA Obec Lužianky patrí medzi najvyhľadávanejšie lokality v okolí Nitry. V blízkosti sa nachádza kompletná občianska vybavenosť – obchody, škola, MHD aj služby. Výhodou je rýchle napojenie na R1 a dostupnosť do centra Nitry približne za 10 minút. Milovníkov športu a relaxu poteší blízkosť prestížneho golfového ihriska RED OAK. - DISPOZÍCIA DOMU Dom pozostáva zo: * vstupnej chodby * priestrannej obývacej izby spojenej s kuchyňou a jedálňou * spálne so šatníkom * 2 samostatných izieb * kúpeľne s vaňou aj sprchovým kútom * samostatného WC * technickej miestnosti * špajze - TECHNICKÉ PARAMETRE * zastavaná plocha vrátane terasy: 121,56 m² * úžitková plocha: 101,59 m² * tehla 25 cm + zateplenie 15 cm * kvalitná väzníková strecha s pochôdznou povalou * optický internet * všetky inžinierske siete - NADŠTANDARDNÝ AKUSTICKÝ KOMFORT Dvojitá deliaca stena zabezpečuje minimálny prenos hluku, vďaka čomu dom ponúka komfort bývania porovnateľný so samostatne stojacim domom. - BONUS Za domom sa nachádza ďalší pozemok, ktorý je možné odkúpiť alebo dlhodobo prenajať – ideálne riešenie pre väčšiu záhradu, relax zónu alebo investíciu do budúcnosti. - Neváhajte nás kontaktovať a dohodnite si obhliadku ešte dnes. Táto nehnuteľnosť Vás očarí svojou atmosférou, lokalitou aj kvalitným prevedením. V cene sú zahrnuté kompletné právne služby, správne poplatky na katastri aj overenie podpisov u notára. V prípade záujmu sprostredkujeme aj rýchle a nezávislé finančné poradenstvo pre získanie najvýhodnejšej hypotéky podľa podmienok kupujúceho. 326 000,- €

Rodinný dom Horné Obdokovce - záhrada

Rodinný dom Horné Obdokovce - záhrada
ID: DZ-23 Predaj
Ponúkam na predaj rodinný dom v obci Horné Obdokovce, okr. Topoľčany. Plocha: úžitková 120m2, pozemku 1082m2. Rodinný dom z roku 1935 je postavený z pálenej a nepálenej tehly, prístavba z roku 1985 je postavená z pálenej tehly. Na mierne svahovitom, cca 11 ár pozemku sa nachádzajú aj hospodárske stavby - 2x murovaná garáž, chlievy, sklad. Nehnuteľnosť prešla čiastočnou, postupnou rekonštrukciou - zateplenie v roku 2020 (polystyrén 10 a 5cm), výmena okien a dverí za plastové v roku 2020, strecha - latovanie a nová škridla v roku 2005, zateplenie stropov zvnútra. Pod jednou garážou sa nachádza pivnica. Dispozícia domu: vstupná chodba, samostatné WC, priestranná kúpeľňa s vaňou, kuchyňa, špajza, obývačka prechodná do spálne a prechod do detskej izby, samostatné izba. V prístavbe sa nachádza druhá kuchyňa. Vykurovanie zabezpečuje plyn. kotol, plechové a liatinové radiátory. Podlahy: betón, lino, dlažba, parkety. Omietky pôvodné. Vybavenie kúpeľne: klasická vaňa. Vybavenie kuchyne: kuchynská linka, sporák, chladnička.Stav objektu: čiastočná rekonštrukcia. Konštrukcia objektu: pálená a nepálená tehla. Kúrenie: plynové. Sedlová strecha. Strešná krytina: škridla. Asfaltová prístupová cesta. Na pozemku sa nachádza studňa, vodovodná prípojka, elektrická prípojka, plynová prípojka a žumpa.Výhody: slnečný, pekný výhľad, tiché prostredie. Cena 156.150 € 156 150,- €